Правильная вентиляция в гараже — это ключевой аспект безопасности и долговечности автомобиля и оборудования. В статье рассмотрим, зачем нужна вентиляция, виды систем и как организовать приток и вытяжку воздуха, особенно в смотровой яме и подвале. Узнаете основные требования к вентиляционным отверстиям и получите советы по созданию эффективной системы вентиляции своими руками.
Зачем нужна вентиляция помещения
В гаражах, где не предусмотрен эффективный воздухообмен с внешней средой, автомобили подвержены быстрому коррозийному процессу, а другое имущество страдает еще больше, так как его защита значительно ниже, чем у автомобилей.
Кроме того, отсутствие вентиляции создает опасность отравления владельца выхлопными газами, что представляет собой гораздо более серьезную угрозу, чем повреждение имущества.
Простое проветривание с помощью открытых ворот не решит проблему, так как необходимо обеспечить постоянный воздухообмен, соответствующий определенным строительным нормам и нормам по часовому расходу воздуха.
Эксперты в области строительства и вентиляции подчеркивают важность правильного проектирования вентиляционной системы в гараже. Во-первых, необходимо обеспечить приток свежего воздуха, что можно сделать с помощью окон или специальных вентиляционных решеток. Во-вторых, важно организовать вытяжку, чтобы избежать накопления вредных газов и избыточной влаги. Для этого рекомендуется устанавливать вентиляторы, которые будут работать автоматически при достижении определенного уровня загрязненности воздуха. Также стоит учитывать, что вентиляция должна быть адаптирована к размеру и конструкции гаража. Правильное сочетание притока и вытяжки обеспечит оптимальный микроклимат, что, в свою очередь, продлит срок службы автомобилей и защитит их от коррозии.

Виды
Замена воздуха в помещении может происходить как естественным образом через конвекцию, так и с помощью искусственно созданных систем. При этом второй вариант не будет зависеть от изменений температуры и времени года.
| Элемент вентиляции | Описание | Рекомендации по установке |
|---|---|---|
| Приточная вентиляция | Обеспечивает поступление свежего воздуха в гараж. | Расположение: В нижней части стены, на высоте 10-30 см от пола. Количество: Минимум 2 отверстия, расположенные на противоположных стенах для сквозного проветривания. Размер: Общая площадь приточных отверстий должна быть не менее 0,2% от площади пола гаража. Защита: Оборудовать решетками для предотвращения попадания мусора и грызунов. |
| Вытяжная вентиляция | Удаляет отработанный воздух, выхлопные газы и влагу из гаража. | Расположение: В верхней части стены или на крыше, на высоте не менее 2 метров от пола. Количество: Минимум 1 вытяжное отверстие. Размер: Общая площадь вытяжных отверстий должна быть на 10-20% больше площади приточных. Тип: Может быть естественной (дефлектор) или принудительной (вентилятор). Защита: Оборудовать козырьком от осадков и сеткой от насекомых. |
| Вентиляционные каналы | Соединяют приточные и вытяжные отверстия с внешней средой. | Материал: Металлические (оцинкованная сталь) или пластиковые (ПВХ). Форма: Круглые или прямоугольные. Диаметр/сечение: Должны соответствовать расчетной производительности вентиляции. Изоляция: При необходимости, изолировать для предотвращения образования конденсата. Уклон: Для естественной вентиляции вытяжной канал должен иметь небольшой уклон вверх. |
| Дефлектор | Усиливает тягу в вытяжном канале за счет ветра. | Расположение: На крыше, над вытяжным каналом. Тип: Различные конструкции (ЦАГИ, Григоровича и др.). Материал: Металл. |
| Вентилятор (для принудительной вентиляции) | Обеспечивает принудительное движение воздуха. | Тип: Осевой или центробежный. Производительность: Рассчитывается исходя из объема гаража и кратности воздухообмена (обычно 6-10 раз в час). Управление: Может быть ручным, автоматическим (по датчику влажности или CO) или с таймером. Расположение: В вытяжном канале или на стене. |
| Датчики (CO, влажности) | Позволяют автоматизировать работу вентиляции. | Расположение: Внутри гаража, на высоте 1,5-2 метра от пола. Подключение: К системе управления вентилятором. Настройка: Установка пороговых значений для включения/выключения вентилятора. |
| Заслонки/регулирующие решетки | Позволяют регулировать объем поступающего/удаляемого воздуха. | Расположение: На приточных и вытяжных отверстиях. Тип: Ручные или автоматические. Назначение: Для балансировки системы и предотвращения сквозняков. |
Интересные факты
Вот несколько интересных фактов о вентиляции в гараже:
-
Качество воздуха: Правильная вентиляция в гараже не только предотвращает накопление вредных паров и газов (например, от бензина или масел), но и помогает избежать образования конденсата, что может привести к коррозии металлических поверхностей и повреждению инструмента.
-
Природная и механическая вентиляция: Существует два основных типа вентиляции: естественная и механическая. Естественная вентиляция основана на разнице температур и давления, что позволяет воздуху свободно циркулировать через вентиляционные отверстия. Механическая вентиляция включает использование вентиляторов для активного удаления загрязненного воздуха и подачи свежего.
-
Расположение вентиляционных отверстий: Для эффективной вентиляции важно правильно расположить вентиляционные отверстия. Обычно рекомендуется устанавливать приточные отверстия в нижней части гаража, а вытяжные — в верхней, чтобы обеспечить естественный поток воздуха. Это помогает создать конвекцию, что значительно улучшает качество воздуха внутри помещения.

Естественная
Согласно законам физики, теплый воздух, обладая меньшей плотностью, поднимается вверх, создавая поток, который позволяет забирать воздух снаружи.
Важно правильно разместить вентиляционные отверстия и обеспечить их достаточный размер. Также необходимо организовать воздушные потоки так, чтобы избежать образования застойных зон.
К примеру, следует распределять приток и отвод воздуха по диагонали помещения на различных уровнях высоты.
Принудительная
Принудительная вентиляция осуществляется с помощью механических систем, чаще всего с электродвигателями вентиляторов и воздуховодами.
Для этого необходимо обеспечить постоянное электроснабжение, то есть наличие 220 Вольт в гараже.
Смешанная
Оптимальным вариантом станет объединение естественной вентиляции с искусственно созданной. В таком случае воздухообмен будет происходить медленно, когда людей нет, а при включении вентиляторов он значительно увеличится.
В результате этого можно добиться экономии средств и использовать более мощные электродвигатели.
Приточная
Существенной разницы нет, поступление воздуха в помещение происходит как при свободном его выходе, так и в случае, когда вентиляторы работают на вытяжку. Оба метода можно рассматривать как приточные, так как свежий воздух будет поступать с улицы.
Основные требования
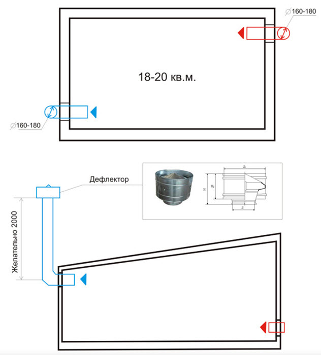
Приточный воздухозаборник расположен в нижней части стены, рядом с полом. Если в здании имеется подвал с смотровой ямой, то в него устанавливается труба для приточной вентиляции, обеспечивая поступление воздуха в самую нижнюю зону.
Оба воздуховода оборудованы ручными заслонками для регулировки потока. Выходные трубы, которые выводятся наружу, заканчиваются дефлекторами, предотвращающими попадание осадков в вентиляционную систему и способствующими усилению воздушного потока при боковом ветре.
Рекомендуется также предусмотреть лабиринтную защиту от пыли и установить решетки для защиты от животных.
Какие должны быть вентиляционные отверстия
Ключевым показателем вентиляционных каналов является их сечение. Удобнее всего его вычислять, основываясь на диаметре круглых труб.
Этот параметр устанавливается с учетом того, что воздух в помещении должен обновляться естественным образом не менее пяти раз в день. В результате получается, что диаметр трубы составляет 0,015 метра на каждый квадратный метр площади помещения.
Как самому сделать вентиляцию
Для выполнения отверстий в стенах и потолке вам понадобится перфоратор, а также пластиковые или металлические трубы, дефлекторы и уплотнительные материалы.
Сначала пробиваются отверстия, соответствующие диаметру труб, после чего трубы устанавливаются и фиксируются. Все образовавшиеся щели заполняются строительным герметиком.
При необходимости на вытяжную трубу можно установить электровентилятор в специальном кожухе, а для притока воздуха подойдет электрокалорифер, если у вас есть надежная и мощная электросеть.
Это будет особенно полезно при работе в гараже в зимний период. Отверстия труб закрываются решетками.
https://youtube.com/watch?v=H5pbxr6nU1k
Смотровая яма
В смотровую яму устанавливается труба для приточной вентиляции. Это поможет эффективно справляться с влажностью, которая может накапливаться из-за земли, даже при наличии гидроизоляции. Внутри ямы можно будет разместить стеллаж для инструментов, что предотвратит их коррозию.
Подвал
Подвал чаще всего используется для хранения продуктов и различных вещей. Поэтому его необходимо тщательно защищать от подземной влаги, включая потолок. На поверхности может образовываться конденсат. Зимой для его проветривания можно использовать теплый воздух от приточного калорифера. При закрытых воротах подвал будет интегрирован в общую систему вентиляции.
Не рекомендуется оставлять включенный калорифер без контроля для поддержания положительной температуры в подвале. Достаточно периодически проверять состояние, а температура земли будет изменяться медленно.
При качественном утеплении стен этого вполне достаточно, и хороший погреб будет функционировать как термостат.
Если подвал соединен со смотровой ямой, необходимо обеспечить ее герметичное закрытие. В противном случае значительно ухудшится качество вентиляции, и вся грязь и влага от автомобиля будут попадать в погреб.
Учет климатических условий
При проектировании вентиляции в гараже необходимо учитывать климатические условия региона, в котором он расположен. Это важно, так как различные климатические факторы могут существенно влиять на выбор типа вентиляционной системы, ее мощность и конструкцию.
В первую очередь, следует обратить внимание на температуру воздуха. В холодных регионах, где зимние температуры могут опускаться ниже нуля, необходимо предусмотреть систему, которая будет предотвращать образование конденсата и обледенение. Для этого можно использовать обогреватели, которые будут поддерживать оптимальную температуру в гараже, а также специальные вентиляционные решетки с подогревом.
Во влажных климатических условиях, где уровень осадков высок, важно обеспечить эффективный отвод влаги из помещения. В таких случаях рекомендуется устанавливать вытяжные вентиляторы, которые будут активно удалять избыточную влагу и предотвращать образование плесени и грибка. Также стоит обратить внимание на использование влагостойких материалов при отделке гаража.
В регионах с высокой температурой и низкой влажностью, например, в пустынных или полупустынных зонах, необходимо предусмотреть систему, которая будет обеспечивать приток свежего воздуха и охлаждение помещения. В таких случаях можно использовать приточные вентиляторы и системы естественной вентиляции, которые будут способствовать циркуляции воздуха и поддержанию комфортной температуры.
Кроме того, следует учитывать сезонные колебания температуры. В некоторых регионах могут наблюдаться резкие перепады температур между зимой и летом. В таких случаях рекомендуется использовать комбинированные системы вентиляции, которые будут адаптироваться к изменяющимся условиям. Например, можно установить автоматические клапаны, которые будут открываться и закрываться в зависимости от температуры и влажности воздуха.
Также важно учитывать направление и силу ветра. Ветреные районы требуют особого внимания к размещению вентиляционных отверстий. Они должны быть расположены так, чтобы минимизировать влияние сильного ветра на работу системы. В некоторых случаях может потребоваться установка защитных экранов или козырьков, которые будут направлять поток воздуха в нужном направлении.
В заключение, учет климатических условий является ключевым аспектом при проектировании вентиляции в гараже. Правильный выбор системы вентиляции, основанный на анализе климатических факторов, поможет создать комфортные условия для хранения автомобиля и других предметов, а также предотвратить негативные последствия, связанные с повышенной влажностью или низкими температурами.
Вопрос-ответ
Как правильно организовать вентиляцию в гараже?
Для обеспечения эффективной циркуляции воздуха в гараже необходимо правильно разместить приточные и вытяжные отверстия. Приточные отверстия рекомендуется располагать в нижней части помещения, на уровне 0,3-0,5 м от пола, чтобы свежий воздух равномерно распределялся по всему объему гаража.
Сколько вентиляционных отверстий должно быть в гараже?
Делается следующим образом: на каждые 15 м² помещения должно быть отверстие площадью от 100 см². Для стандартного гаража 4х6 м должно быть два таких канала на приток и два на отток. В случае, если в помещении скапливается влага (или есть вероятность её появления), то требуется данные площади сечения увеличить.
Из какой трубы сделать вентиляцию в гараже?
Для небольших помещений, таких как санузлы, кладовые, котельные, обычно достаточно труб диаметром 50 мм. В жилых комнатах, на кухне, в гараже лучше использовать вентиляцию из канализационных труб 110 мм. Для больших площадей, саун, бассейнов, промышленных цехов применяются трубы 160 мм.
Советы
СОВЕТ №1
Перед началом установки вентиляции в гараже, тщательно оцените его размеры и конструкцию. Определите, какие зоны требуют вентиляции больше всего, например, места, где хранятся химикаты или где происходит работа с автомобилем. Это поможет вам выбрать правильный тип вентиляционной системы.
СОВЕТ №2
Рассмотрите возможность установки приточно-вытяжной вентиляции. Это обеспечит постоянный приток свежего воздуха и удаление загрязненного. Убедитесь, что воздуховоды расположены так, чтобы обеспечить оптимальный поток воздуха по всему помещению.
СОВЕТ №3
Не забывайте о фильтрации воздуха. Установка фильтров в систему вентиляции поможет уменьшить количество пыли и вредных частиц, что особенно важно, если вы работаете с красками или химическими веществами в гараже.
СОВЕТ №4
Регулярно проверяйте и обслуживайте вентиляционную систему. Убедитесь, что воздуховоды не забиты, а фильтры заменяются по мере необходимости. Это поможет поддерживать эффективность вентиляции и продлить срок службы оборудования.







